Для активации новой учетной записи и ее подтверждения на Форуме - необходимо связаться с администратором по электронной почте p-i-n-o-k-i-o@mail.ru.
Все новые учетные записи не прошедшие подтверждения администратором воспринимаются как спам.
Все новые учетные записи не прошедшие подтверждения администратором воспринимаются как спам.
Корпус для 6С52Н ММ-фонокорректора POEMA'NU
Модератор: Роман Мирошниченко
- poty
- Профи

- Сообщения: 5049
- Зарегистрирован: 24 мар 2014, 10:00
- Откуда: Россия, Москва
- Благодарил (а): 192 раза
- Поблагодарили: 664 раза
- Контактная информация:
Ну, если ТА ставить вертикально, то его можно вообще развернуть параллельно боковой стенке.
Честно говоря, если поставить сплошной экран чуть повыше ПА, то можно все три трансформатора поставить по передней стенке, а все остальные платы вынести вправо.
[upd=1462749484][/upd]
ПВН и ПСН теперь можно не ставить вертикально, они умещаются и так.
Честно говоря, если поставить сплошной экран чуть повыше ПА, то можно все три трансформатора поставить по передней стенке, а все остальные платы вынести вправо.
[upd=1462749484][/upd]
ПВН и ПСН теперь можно не ставить вертикально, они умещаются и так.
Владислав
- Роман Мирошниченко
- Заслуженный Ветеран

- Сообщения: 4415
- Зарегистрирован: 09 май 2014, 13:31
- Откуда: Саратов
- Благодарил (а): 536 раз
- Поблагодарили: 187 раз
- Контактная информация:
Легко!poty писал(а):Ну, если ТА ставить вертикально, то его можно вообще развернуть параллельно боковой стенке.
Согласен!poty писал(а):ПВН и ПСН теперь можно не ставить вертикально, они умещаются и так.
Не уверен, что правильно понял.poty писал(а):если поставить сплошной экран чуть повыше ПА
Вы предлагаете поставить там еще один сплошной экран?
Это логично. И к нему будут крепиться трансформаторы.
P.S. Я выезжаю "на природу" до завтра. При наличии времени и интеренета буду продолжать проработку компоновки.
- Евгений Михеев
- Заслуженный Ветеран

- Сообщения: 4473
- Зарегистрирован: 22 май 2015, 11:52
- Откуда: Республика Коми, Ухта
- Благодарил (а): 324 раза
- Поблагодарили: 355 раз
- Контактная информация:
Как я уже писал ранее, трансформаторы крепятся через прокладку винтом м5.
Соответственно, если крепим их вертикально - этот финт прошивает стенку. М5 имеет достаточно большую шляпку. Визуализация страдает.
[upd=1462788992][/upd]
От плоскости платы вся конструкция будет возвышаться на 62мм
Соответственно, если крепим их вертикально - этот финт прошивает стенку. М5 имеет достаточно большую шляпку. Визуализация страдает.
[upd=1462788992][/upd]
От плоскости платы вся конструкция будет возвышаться на 62мм
Дорогу осилит идущий
- Роман Мирошниченко
- Заслуженный Ветеран

- Сообщения: 4415
- Зарегистрирован: 09 май 2014, 13:31
- Откуда: Саратов
- Благодарил (а): 536 раз
- Поблагодарили: 187 раз
- Контактная информация:
Да, можно не заморачиваться с "колодцем".
[upd=1462798648][/upd]
[upd=1462798782][/upd]
На фронтальной стороне у нас есть еще одно препятствие - индикатор. Что он из себя представляет внутри корпуса? Какие размеры?
Это может составить проблему, если с другой стороны пластины крепить плату. Как на моем варианте.zyu писал(а):М5 имеет достаточно большую шляпку.
[upd=1462798648][/upd]
Каково все-таки ВАШЕ мнение насчет такого способа омеднения? Я предполагаю, что по цене это будет существенно дешевле гальваники и т.п. Я не агитирую, просто как-то незамеченным прошло. А способ вполне заслуживает внимания за счет возможности локального нанесения меди. Можно смело делать стальной корпус. Красить его порошком. А потом (заклеив не нужные места малярной лентой) нанести экранирующий состав.zyu писал(а):Я всё забываю предложить вариант эмилака http://www.chipdip.ru/product/emi-35-200/
[upd=1462798782][/upd]
На фронтальной стороне у нас есть еще одно препятствие - индикатор. Что он из себя представляет внутри корпуса? Какие размеры?
- Роман Мирошниченко
- Заслуженный Ветеран

- Сообщения: 4415
- Зарегистрирован: 09 май 2014, 13:31
- Откуда: Саратов
- Благодарил (а): 536 раз
- Поблагодарили: 187 раз
- Контактная информация:
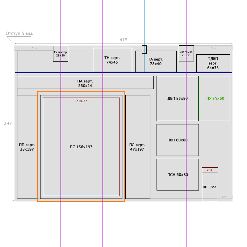
Владислав, я поправил под Ваши рекомендации. Давайте, развивать это дальше?
Мои предложения сюда:
- Фиолетовые вертикальные линии обозначают центры ручек управления. По этим линиям шириной 40 мм. будут идти перфорации (аналогично корпусу предусилителя).;
- Голубая линия - центр светодиода-индикатора;
- "ПА" я подвинул ближе к фронтальному экрану, чтобы крепить ее на него. Единственное, нужно будет стойки предусмотреть длинее (не 6 мм., а хотя бы 10 мм.), чтобы не мешали головки крепежных болтов трансформаторов.Думаю, стоит внести поправку в размер и нарисовать "ПА" уже такой.;
- "ФС" тогда стоит вернуть на штатное место (по корпусу предусилителя);
- Для "ПУ" слева места сколько хочешь.
Если есть еще идеи, давайте я буду это прорисовывать.
[upd=1462818865][/upd]
Светодиод-индикатор может внести свои коррективы в расположение трансформаторов. Но, пока под него около 10 мм. есть.
Мои предложения сюда:
- Фиолетовые вертикальные линии обозначают центры ручек управления. По этим линиям шириной 40 мм. будут идти перфорации (аналогично корпусу предусилителя).;
- Голубая линия - центр светодиода-индикатора;
- "ПА" я подвинул ближе к фронтальному экрану, чтобы крепить ее на него. Единственное, нужно будет стойки предусмотреть длинее (не 6 мм., а хотя бы 10 мм.), чтобы не мешали головки крепежных болтов трансформаторов.Думаю, стоит внести поправку в размер и нарисовать "ПА" уже такой.;
- "ФС" тогда стоит вернуть на штатное место (по корпусу предусилителя);
- Для "ПУ" слева места сколько хочешь.
Если есть еще идеи, давайте я буду это прорисовывать.
[upd=1462818865][/upd]
Светодиод-индикатор может внести свои коррективы в расположение трансформаторов. Но, пока под него около 10 мм. есть.
- Евгений Михеев
- Заслуженный Ветеран

- Сообщения: 4473
- Зарегистрирован: 22 май 2015, 11:52
- Откуда: Республика Коми, Ухта
- Благодарил (а): 324 раза
- Поблагодарили: 355 раз
- Контактная информация:
Полная длина внутренней части 18.5мм. Отсюда следует вычитать толщину фронтальной панели. Таким образом, например, при фронте в 10 мм внутри корпуса окажется 8.5мм тела держателя светодиода.
Последний раз редактировалось Евгений Михеев 09 май 2016, 22:36, всего редактировалось 1 раз.
Дорогу осилит идущий
- Роман Мирошниченко
- Заслуженный Ветеран

- Сообщения: 4415
- Зарегистрирован: 09 май 2014, 13:31
- Откуда: Саратов
- Благодарил (а): 536 раз
- Поблагодарили: 187 раз
- Контактная информация:
- Евгений Михеев
- Заслуженный Ветеран

- Сообщения: 4473
- Зарегистрирован: 22 май 2015, 11:52
- Откуда: Республика Коми, Ухта
- Благодарил (а): 324 раза
- Поблагодарили: 355 раз
- Контактная информация:
- Роман Мирошниченко
- Заслуженный Ветеран

- Сообщения: 4415
- Зарегистрирован: 09 май 2014, 13:31
- Откуда: Саратов
- Благодарил (а): 536 раз
- Поблагодарили: 187 раз
- Контактная информация:
- Евгений Михеев
- Заслуженный Ветеран

- Сообщения: 4473
- Зарегистрирован: 22 май 2015, 11:52
- Откуда: Республика Коми, Ухта
- Благодарил (а): 324 раза
- Поблагодарили: 355 раз
- Контактная информация:
- Роман Мирошниченко
- Заслуженный Ветеран

- Сообщения: 4415
- Зарегистрирован: 09 май 2014, 13:31
- Откуда: Саратов
- Благодарил (а): 536 раз
- Поблагодарили: 187 раз
- Контактная информация:
- poty
- Профи

- Сообщения: 5049
- Зарегистрирован: 24 мар 2014, 10:00
- Откуда: Россия, Москва
- Благодарил (а): 192 раза
- Поблагодарили: 664 раза
- Контактная информация:
Я считаю, что нужно останавливаться на варианте /viewtopic.php?p=9524#p9524
Для этого:
а) искать варианты уменьшения глубины держателя светодиода;
б) отодвигать экран дальше от передней панели.
У нас есть 297-210=87мм от окончания экрана. Пусть 5мм оставляем как зазор, 24мм - плата ПА, пусть экран со всеми неровностями =2 мм. Получается, что экран можно ставить на расстоянии 56мм от передней кромки. Трансформатор имеет высоту 40 мм. Т.е., при таком раскладе до передней панели остаётся 16мм.
Теперь по расположению плат. Я бы платы ДБП и ДВН+ДСН поменял бы местами. Справа от ДБП разместил бы плату управления. Фактически, все трансформаторы будут "питаться" из этой ПУ. Сама ПУ будет "питаться" от ДБП. ДБП - от ТДБП. Т.о., мы всё это располагаем в правом верхнем углу экрана.
Размещение ПП и ПЛ горизонтально, конечно, предпочтительнее, но таким образом мы теряем 25мм из 156мм оставшегося справа пространства, т.е. 131мм. Это позволит разместить две платы 60мм рядом с зазором 5мм между ними и 5 мм до правой панели, но нужно всё достаточно точно расставлять.
Для этого:
а) искать варианты уменьшения глубины держателя светодиода;
б) отодвигать экран дальше от передней панели.
У нас есть 297-210=87мм от окончания экрана. Пусть 5мм оставляем как зазор, 24мм - плата ПА, пусть экран со всеми неровностями =2 мм. Получается, что экран можно ставить на расстоянии 56мм от передней кромки. Трансформатор имеет высоту 40 мм. Т.е., при таком раскладе до передней панели остаётся 16мм.
Теперь по расположению плат. Я бы платы ДБП и ДВН+ДСН поменял бы местами. Справа от ДБП разместил бы плату управления. Фактически, все трансформаторы будут "питаться" из этой ПУ. Сама ПУ будет "питаться" от ДБП. ДБП - от ТДБП. Т.о., мы всё это располагаем в правом верхнем углу экрана.
Размещение ПП и ПЛ горизонтально, конечно, предпочтительнее, но таким образом мы теряем 25мм из 156мм оставшегося справа пространства, т.е. 131мм. Это позволит разместить две платы 60мм рядом с зазором 5мм между ними и 5 мм до правой панели, но нужно всё достаточно точно расставлять.
Владислав
- Роман Мирошниченко
- Заслуженный Ветеран

- Сообщения: 4415
- Зарегистрирован: 09 май 2014, 13:31
- Откуда: Саратов
- Благодарил (а): 536 раз
- Поблагодарили: 187 раз
- Контактная информация:
ПА будет крепиться к тому же экрану, что и трансформаторы. Евгений написал, что у трансформаторов толстая головка крепежного болта. Поэтому я увеличил зазор (заложенный в высоту ПА) на 5 мм.poty писал(а):У нас есть 297-210=87мм от окончания экрана. Пусть 5мм оставляем как зазор, 24мм - плата ПА, пусть экран со всеми неровностями =2 мм. Получается, что экран можно ставить на расстоянии 56мм от передней кромки. Трансформатор имеет высоту 40 мм. Т.е., при таком раскладе до передней панели остаётся 16мм.
Конечно, они не были бы лишними для сведодиода-индикатора.
[upd=1462828605][/upd] Платы поменял местами. С отодвиганием экрана - посчитаю. ПУ (60 мм.) не умещается.
- poty
- Профи

- Сообщения: 5049
- Зарегистрирован: 24 мар 2014, 10:00
- Откуда: Россия, Москва
- Благодарил (а): 192 раза
- Поблагодарили: 664 раза
- Контактная информация:
Тогда как вариант - либо резать держатель, либо купить держатель с меньшей внутренней длинной.
[upd=1462829367][/upd]
О, рисунок поменялся. Сейчас посмотрю.
[upd=1462829502][/upd]
Жалко, что ТА и ТН не поменять местами... Было бы логичнее. Размеры ПУ тоже неактуальны. Но в целом я бы взял последний вариант за основу.
[upd=1462829555][/upd]
А с горизонтальным расположением ПП и Пл не проходим?
[upd=1462829367][/upd]
О, рисунок поменялся. Сейчас посмотрю.
[upd=1462829502][/upd]
Жалко, что ТА и ТН не поменять местами... Было бы логичнее. Размеры ПУ тоже неактуальны. Но в целом я бы взял последний вариант за основу.
[upd=1462829555][/upd]
А с горизонтальным расположением ПП и Пл не проходим?
Владислав
- Роман Мирошниченко
- Заслуженный Ветеран

- Сообщения: 4415
- Зарегистрирован: 09 май 2014, 13:31
- Откуда: Саратов
- Благодарил (а): 536 раз
- Поблагодарили: 187 раз
- Контактная информация:
- poty
- Профи

- Сообщения: 5049
- Зарегистрирован: 24 мар 2014, 10:00
- Откуда: Россия, Москва
- Благодарил (а): 192 раза
- Поблагодарили: 664 раза
- Контактная информация:
Идея с единственным экраном мне очень нравится: просто и всё, что нужно - прикручено. На самом деле просится перенос ТН на место справа от ПВН. А на его место - перемещение ТА, а на место ТА -установка ПУ. Т.о. мы бы смогли избавиться от проклятия держателя светодиода (плата ПУ гораздо тоньше ТН) и размещение было бы более логичным. Но здесь возникает проблема - куда ТН крепить?
Кроме того, при горизонтальном размещении ПП и ПЛ я предлагаю не делать промежутка между ними и экраном. Я постарался там сделать так, чтобы как минимум 2мм было от края до любой токопроводящей площадки, поэтому нет никакой необходимости делать большой зазор (ну, максимум, по миллиметру, просто для неточностей).
Кроме того, при горизонтальном размещении ПП и ПЛ я предлагаю не делать промежутка между ними и экраном. Я постарался там сделать так, чтобы как минимум 2мм было от края до любой токопроводящей площадки, поэтому нет никакой необходимости делать большой зазор (ну, максимум, по миллиметру, просто для неточностей).
Владислав
- Роман Мирошниченко
- Заслуженный Ветеран

- Сообщения: 4415
- Зарегистрирован: 09 май 2014, 13:31
- Откуда: Саратов
- Благодарил (а): 536 раз
- Поблагодарили: 187 раз
- Контактная информация:
Владислав, я уже подготовил два рисунка, показывающих возможное развитие разных вариантов. Того, что предложили Вы (В1) и комбинированного (В2).
Я их уже выложу, а потом помудрю над Вашим предложением.
Мне тоже очень нравится единый сплошной экран. Это функционально.
В Вашем варианте меня смущает удаленность "ПВН" и "ПСН" от трансформаторов. Разве они не связаны?
Кстати "ПУ" и "ДБП" можно разместить друг над другом? Это проще крепить.
Хочу уточнить, почему желательно горизонтальное расположение "ПП" и "ПЛ"? В отличии от всего остального, они отлично крепятся к экрану.
[upd=1462875279][/upd]
- Там будет хорошая вентиляция для них (боковая перфорация + внизу будут отверстия).;
- Они будут хорошо кранированы и удалены.;
- Соблюдается логика прохождения тока;
- И это будет впечаляюще смотреться через отверстия - три тороида!!! (Но, последнее не главное
).
Я их уже выложу, а потом помудрю над Вашим предложением.
Мне тоже очень нравится единый сплошной экран. Это функционально.
В Вашем варианте меня смущает удаленность "ПВН" и "ПСН" от трансформаторов. Разве они не связаны?
Кстати "ПУ" и "ДБП" можно разместить друг над другом? Это проще крепить.
Хочу уточнить, почему желательно горизонтальное расположение "ПП" и "ПЛ"? В отличии от всего остального, они отлично крепятся к экрану.
[upd=1462875279][/upd]
Мне очень нравится размещение трансформаторов вдоль правого бока:poty писал(а):На самом деле просится перенос ТН на место справа от ПВН. А на его место - перемещение ТА, а на место ТА -установка ПУ. Т.о. мы бы смогли избавиться от проклятия держателя светодиода (плата ПУ гораздо тоньше ТН) и размещение было бы более логичным. Но здесь возникает проблема - куда ТН крепить?
- Там будет хорошая вентиляция для них (боковая перфорация + внизу будут отверстия).;
- Они будут хорошо кранированы и удалены.;
- Соблюдается логика прохождения тока;
- И это будет впечаляюще смотреться через отверстия - три тороида!!! (Но, последнее не главное
- Роман Мирошниченко
- Заслуженный Ветеран

- Сообщения: 4415
- Зарегистрирован: 09 май 2014, 13:31
- Откуда: Саратов
- Благодарил (а): 536 раз
- Поблагодарили: 187 раз
- Контактная информация:
Тогда В2 можно поправить, попробовав разместить ПП и ПЛ горизонтально. Но, с минимальными зазорами от экрана и от плат питания.poty писал(а):Кроме того, при горизонтальном размещении ПП и ПЛ я предлагаю не делать промежутка между ними и экраном. Я постарался там сделать так, чтобы как минимум 2мм было от края до любой токопроводящей площадки, поэтому нет никакой необходимости делать большой зазор (ну, максимум, по миллиметру, просто для неточностей).
[upd=1462876791][/upd]
Очень плотно встает. И то, если подвинуть "ФС".
- poty
- Профи

- Сообщения: 5049
- Зарегистрирован: 24 мар 2014, 10:00
- Откуда: Россия, Москва
- Благодарил (а): 192 раза
- Поблагодарили: 664 раза
- Контактная информация:
Связаны, почему я и говорил о "красивости" переноса ТН на место ПУ. Это не очень правильно, согласен, но если это будет единственным вариантом, то попробуем эти длинные соединения как-нибудь заэкранировать.Роман Мирошниченко писал(а):В Вашем варианте меня смущает удаленность "ПВН" и "ПСН" от трансформаторов. Разве они не связаны?
Идея мне нравится, но это нужно решить до того, как Ян приступит к изготовлению этой платы, иначе их форм-факторы будут разными и просто так закрепить уже не получится.Роман Мирошниченко писал(а):Кстати "ПУ" и "ДБП" можно разместить друг над другом? Это проще крепить.
Я настаиваю на слове "желательно", потому что этот вопрос, как раз, не особенно важен. Почему лучше горизонтально:Роман Мирошниченко писал(а):Хочу уточнить, почему желательно горизонтальное расположение "ПП" и "ПЛ"? В отличии от всего остального, они отлично крепятся к экрану.
1. Стабилизатор LR8 напаивается на плату, на которой выделена область, состоящая полностью из меди и служащая аналогом радиатора (аналогичная область есть на оборотной стороне платы). Эта область будет лучше работать, если она будет излучать вверх. Но я не думаю, что стабилизаторы будут сильно греться, поэтому этот вопрос меня не очень занимает.
2. Я планировал эти платы так, чтобы можно было минимизировать длину проводов, идущих на ПС. Если мы их разворачиваем, то длина проводов незначительно увеличивается, что не принципиально также.
Да, это - самое логичное расположение. Единственно, я бы ПУ тогда поставил в самый низ. Причины:Роман Мирошниченко писал(а):Мне очень нравится размещение трансформаторов вдоль правого бока:
1. Провод от ФС идёт ТОЛЬКО к ПУ.
2. Провода первичных обмоток всех трёх трансформаторов идут на ПУ.
3. ТДБП идут на ДБП.
4. ДБП идёт на ПУ.
5. ПУ управляет реле, расположенном в нижней части ПС.
6. Единственные провода, которые окажутся длинными - от переключателей, но они несущественны в данном случае и легко могут быть проложены экранированным проводом, при необходимости.
Владислав
Кто сейчас на конференции
Сейчас этот форум просматривают: нет зарегистрированных пользователей и 1 гость